由于现在的城市地产价格较高,为了尽可能的利用土地,开发商设计出越来越多的奇形怪状的房屋户型,这些户型虽然外表看过去能带来些许美感,彰显一些独特的个性,可是从风水角度来讲,大部分都是不利于家运的。所以天易风水建议大家在买房选户型的时候还是多从家人的运势和健康角度出发,不要太注重外在的形象,这样也就能避免带来以后诸多不必要的麻烦。
一、刀把形的户型
整个户型象一把菜刀,住在这样的房子里面,不但主人的脾气暴躁,家庭不宁,也无法和邻居、朋友相处,而且对家人的健康也不利;

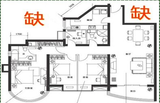
二、缺角的房子户型
房屋户型以方正为最佳,缺了任何一个角,都会对家里的不同成员造成影响,犹如人体一样,缺角就相当于肢体不全的残疾人。西北角缺不利丈夫,西南角缺不利妻子,东北角缺不利长子,东南角缺不利长女。缺角房住久了,不是家人不和,就是导致家庭四分五裂。

三、多边型的房子户型
这种户型一般常见于欧式建筑,例如八角亭,八角屋,这种户型容易让家人的性格有棱有角,同时也对健康不利。而且住这种户型时间久的人,头脑思维越来越不清晰,没有主见,东一下、西一下什么都做。

四、有尖顶的户型
很多洋房的顶层会出现这个问题,因为房屋的外面要做一个漂亮的尖顶造型,直接影响到住宅里面有一个大大的尖顶,这种格局对主人的健康有非常大的影响。

五、三角型的房子户型
户型风水切忌三角形的房子。三角形的不稳定,以及风水学上的种种不良寓意,足以让你退避三舍。这种三角形户型我们不说风水问题,单说面积的有效利用就做不到,许多面积将会浪费掉。风水上,这种户型也属大不吉。

六、T型的房子户型
这种房子的特点是前面大,后面小。住这种户型时间久的人,个人运势和家庭的运势会越来越衰。这种格局在风水中被称为“退田比”,就是家运一天不如一天。所以在看户型风水时,一定要注意不要选到这样的户型。

七、有尖角的户型
有的房子从平面图上看,形成了不同程度的尖角,这样的户型,本身就具备了形煞,就像窗外正对的各种形煞一样,都会对居住者产生非常不利的影响。
